Skip to main content
Processing
Account
Menu
SIGN UP | LOG IN
Dash
Now Playing
Projects
Industry News
Products
Search
Photo
Video
Drawing
News Category
Accessibility
Architecture
Awards
Construction
Design
Development
Event
Have your say
Housing
Industry Content
Infrastructure
Inspired
Landscape
Planning
Property
Research
Resources
Safety
Sustainability
Urbanism
Wellbeing
Industry Body
ABCB
ACA
ACIF
AIA
AILA
APHA
ARB NSW
ArchiTeam
Australian Architects Declare
Australian Constructors Association
Australian Furniture Association
Australian Passivhaus Association
BCI Central
GECA
Global GreenTag
LFIA
Learning Environments Australasia
MECLA
NAM
NSW ARB
National Trust Victoria
PIA
Parlour
Property Council of Australia
Property Industry Foundation
UDIA NSW
UDIA Victoria
unmeasured
Project Building Materials
Aluminium
Bamboo
Blockwork
Brass
Brick
Ceramic
Cladding
Clay
Cobblestone
Concrete
ConcreteTimber
Copper
Cork
Corrugated
Corrugated Iron
Corten
Cross-Laminated Timber
Decking
Equitone
Glass
Glass Bricks
Insitu Concrete
Laminated glass
Laminated timber
Limestone
Marble
Metal
Oriented Strand Board (OSB)
Pavers
Perforated Steel
Perforated brick
Plaster
Plastic
Plywood
Polycarbonate
Precast Concrete
Rammed Earth
Render
Render Timber
Shingles
Skillion Roof
Stainless Steel
Steel
Stone
Straw
Terracotta
Terrazzo
Thatch
Tile
Timber
Timber Cladding
Titanium Zinc
Vaulted Ceiling
Weatherboard
Zinc
Project Typology
Adaptive Reuse
Airport
Amphitheatre
Apartment
Apartment Building
Apartments
Aquatic Centre
Arcade
Art Center
Art Centre & Galleries
Auditorium
Bakery
Bakery. Café
Bank
Bar
Barn
Boat
Boat Shed
Bookstore
Brewery & Distillery
Bridge
Broadcasting Facility
Bungalow
Cabin
Cabins
Cafe
Café
Campground
Campus
Casino
Cathedral
Cemetary
Chapel
Church
Cinema
City and Town Hall
Civic
Club
Clubhouse
Co-Living
College
Communal Living
Community
Community Centre
Concert Hall
Cottage
Courthouse
Courtyard
Coworking
Crypts
Cultural
Cultural Centre
Daycare
Dorms
Early Learning
Embassy
Events Space
Events Venue
Events venue
Exhibition
Exhibition Centre
Exhibition Space
Factory
Fashion
Fire Station
Gallery
Garden
Greenhouse
Hall
Healthcare Center
High School
Homestay
Hospital
Hostel
Hotel
House
Houses
Hut
Installation
Institutional
Interior
Interior Fit-Out
Interior Fitout
Interiors
Kindergarten
Laboratory
Landmark
Landmarks & Monuments
Landscape Installation
Landscape Integration
Leisure
Library
Lodges
Loft
Lookout
Mausoleums
Memorial
Mixed-Use
Mixed-use
Mobile Residential
Mosque
Multi-Residence
Museum
Music Academy
Norway
Office
Office Building
Park
Parking
Pavilion
Penthouse
Performance & Theatre
Petrol/Gas Station
Pharmacy
Pier/Waterfront Structure
Playcentre
Playground
Pool
Primary School
Private Housing
Public Building
Public Space
Recreation
Recreation Facility
Recreation Space
Recreation and Training
Recreation and training
Redevelopment
Regeneration
Rennovation
Renovation
Renovation/Extension
Research Centre
Resort
Restaurant
Retail
Retirement Living
Retreat
School
Seniors Living
Shed
Shelter
Shopping
Shopping Centre
Showroom
Spa
Stadium
Station
Store
Studio
Talent Centre
Tattoo Studio
Temple
Temporary Structure
Theatre
Timber
Tourism
Tower
Townhouse
Treatment
Treehouse
University
Urban Design
Vacation Rental
Veterinary Clinic
Viewing Platform
Villa
Visitor Centre
Warehouse
Wedding Venue
Wellness Centre
Winery
Workpace
Zoo/Aquarium
Project Features
Accessibility
Acoustic
Acoustic Panel
Activity Zone
Activty Zone
Aerial
Aerial view
Altar
Amphitheatre
Angle
Animal
Animals
Apartments
Arch
Archway
Archways
Art
Artwork
Atrium
Attic
Auditorium
Awning
Balconies
Balcony
Baldony
Balustrade
Bar
Barbeque
Barn
Barn Door
Basin
Basins
Basketball Court
Bath
Bathroom
Beach
Beam
Beams
Bed
Bedroom
Bedrooms
Beds
Bedside Table
Bench
Bench Seating
Bench seating
Bifold Door
Bifold Doors
Bike
Bike Park
Bike Path
Bike Rack
Black
Blinds
Blue
Boardwalk
Bookases
Bookcase
Bookcases
Bookcases.Windows
Booth
Booths
Bridge
Bronze
Brutalist
Bunk Beds
Butlers Pantry
Butterfly Roof
Cabinetry
Cabinets
Cafe
Café
Cahirs
Cantilever
Car
Carpark
Carpet
Carport
Cart
Carving
Cat
Cave
Ceiling
Ceiling Pattern
Cellar
Chair
Chairs
Chairs.Table
Chandelier
Chiars
Chimney
Chimneys
Circular
Cladding
Classroms
Classroom
Classrooms
Clerestory Windows
Clestory windows
Cliff
Colour
Colourful
Column
Columns
Concrete
Concrete panels
Cone
Connecting
Cornice
Corten
Courtayrd
Courtyard
Courtyards
Covered
Covered Space
Cube
Curtain
Curtain Wall
Curtains
Curve
Curved
Deck
Decking
Desk
Desks
Dining
Dining Room
Discs
Display
Dog
Dome
Door
Doorframe
Doors
Doorwar
Doorway
Doorways
Double Door
Double Doors
Dressing Rooms
Driveway
Eave
Eentrance
Elevator
Elevators
Empty
Empty Room
Enclosure
Enclosures
End-of-trip
Entrace
Entrance
Envelope
Escalator
Exercise Space
Exhibition Space
Exposed services
Exterior
Facade
Fan
Façade
Fence
Fencing
Ferry
Fire Pit
Fire Pole
Fireaplce
Firepit
Fireplace
Flag
Flagpole
Floorboards
Fold
Forest
Forrest
Foyer
Frame
Framing
Front Desk
Furniture
Gabions
Gable Roof
Garage
Gardem
Garden
Garden Bed
Garden Beds
GardenmWalls
Gardens
Gate
Geometric
Glass
Glass Façade
Glasshouse
Gold
Green
Green Roof
Green Wall
Guitar
Gym
Gymnasium
Hall
Hallway
Hallways
Handrail
Handrail<Windows
HandrailSeating
Handrails
Handrial
Hangers
Hanging
Hanging Garden
Hanging Light
Hanging Lights
Hanging Plants
Helipad
High Chair
High Rise
Hip Roof
Hollow
Indoor Garden
Indoor Pool
Indoors
Infinity Pool
Instrument
Interactive
Interior
Interiors
Jali timber
Jali wall
Kicthen
Kitchen
KitchenTable
LED
Ladder
Ladders
Lake
Lamp
Landscaping
Laneway
Lanscaping
Letterbox
Library
Light
Light Poles
Lighting
Lights
Living
Living Area
Living Room
Lobby
Lockers
Loft
Lookout
Louvres
Machinery
Mailbox
Mailboxes
Meditation Room
Meeting Room
Mezzanine
Mirror
Mirrors
Mirros
Mountain
Netting
Nook
Oculus
Office
Offices
Orange
Outdoor Dining
Outdoor Kitchen
Outdoor Shower
Outdoor Space
Outhouse
Overhand
Overhang
Overpas
Overpass
Overpasses
Panelling
Parking
Parquetry
Passage
Path/Pathway (Walkway implies overhead)
Pathway
Pathways
Patio
Pattern
Pavers
Pavilion
Pavillion
People
Perforated Door
Perforated Steel
Perforations
Pergola
Pergolas
Photo-frame
Piano
Pillar
Pillars
Pink
Pipes
Pivot Door
Pivot door
Pizza Oven
Plant
Plants
Platform
Platforms
Play Area
Playground
Plywood
Polished Concrete
Polished concrete
Pond
Pool
Pool Table
Port
Potted Plant
Potted Plants
Purple
Pyramid
Rack
Railing
Ramp
Ramps
Reception
Red
Reflective
Refreshment Zone
Resort
Rest
Rest Chair
Retaining Wall
Retaining wall
River
Rock
Roller Door
Roof
Roofing
Rooftop
Rooftop Garden
Rooftop Gardens
Rug
Rugs
Rural
Sauna
Saw Tooth
Scaffolding
Scale
Screen
Sculptures & Statues
Seating
Seting
Setps
Shade
Shade & Shelter
Shelf
Shelter
Shelves
Shelving
Shelving.Bookcases
Shingles
Shipping Container
Shower
Shutters
Sign
Signage
Silts
Silver
Sink
Sinks
Skillion Roof
Skylight
Skylights
Slide
Sliding Door
Sliding Doors
Sliding door
Slope
Sloped
Sloping
Sloping Roof
Snow
Sofa
Solar Panels
Spa
Space
Spandrels
Spiral
Splashback
Sports Field
Sports Ground
Stack
Stage
Stainless Steel
Staircase
StaircasemHandrail
Staircases
Stairecase
Stairs
Statue
Steel
Step
Steps
Stilts
Stone Wall
Storage
Stpes
Studio
Study
Sunken Lounge
Sunken Seating
Sunken Space
Sunken lounge
Sunroom
Support
Sustainability
Sustainable
Swimming Pool
Swing
TV
Table
Table Top
Tables
Tapware
Tennis Court
Tent
Terrace
Texture
Thatre
Theatre
Tiles
Timber
Toilet
Toilets
Top View
Tower
Towers
Toys
Trampoline
Trees
Triangle
Truss
Tube
Tunnel
Tunnels
Umbrella
Underground
Underwater
Undulating Roof
Urban
Vaulted Ceiling
Veranda
Vertical Vegetation
Video
View
Void
Walk in Robe
Walkway
Walkways
Walkwy
Wall
Wallpaper
Walls
Wardrobe
Water
Water Feature
Waterfront
Wave
White
Wind Turbine
Window
Window Seat
Windowa
Windows
Windows Seat
Windwows
Workshop
Worship
Yellow
balcony
bathroom
bed
bedroom
beds
bookcases
garden
handrail
hanging
hanging Lights
indoor Garden
lamp
table
table Top
tables
walkway
Project Sector
Accessibility
Adaptive Reuse
Adtive Reuse
Affordable or Social Housing
Aged Care
Commercial
Commerical
Commericial
Communal
Community
Corporate
Cultural
Education
Exhibition
Government
Health
Heritage
Heritage/Conservation
Hospitality
Hotel
Industrial
Institutional
Interior Design
Interiors
Justice
Landmarks & Monuments
Landmarks & Mounements
Landscape
Landscape Design
Leisure
Mixed Use
Multi-Residential
Public
Recreation
Recreational
Religious
Renovations/Extensions
Renovations/Extensions.Education
Residential
Residential - New
Residential - Renovations/Extensions
Retail
Scienjpgic
Scientific
Sport
Sustainability
Tourism
Transport/Infrastructure
Urban Design
Vacation Rental
Wellbeing
Workplace
Worship
heritage/Conservation
Refine search
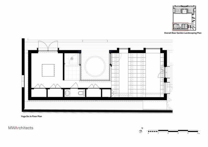
Related resources for 34265_BEC_IN_Yoga-Dojo_b.jpeg
17
resources
As added
Random
Popularity
Colour
Type
Modified
Title
24 per page
48 per page
72 per page
120 per page
240 per page
Actions...
Edit all resources
CSV Export - metadata
Refine results
Additional search terms